Nowe kameralne osiedle domów w zabudowie szeregowej z ogrodami `Nad Strumykiem` na Jędrzychowie w Zielonej Górze – już wybudowane!
Kupujący nie płaci prowizji i pcc !
Oferta dla szukających wyjątkowego miejsca do mieszkania, ceniących sobie wygodę i bezpieczeństwo. Także dla tych, dla których ważne jest mieszkanie w nowym, ładnym i uporządkowanym otoczeniu.
Zdjęcia widoczne w galerii nie są wizualizacjami i przedstawiają aktualny stan osiedla.
W czterech budynkach znajduje się łącznie 15 lokali mieszkalnych. Każdy dwupiętrowy, z własnym ogrodem oraz prywatnym miejscem parkingowym.
Szczegóły u Marty Hozakowskiej tel. Skontaktuj się
2 miejsca parkingowe gratis!
WALORY OSIEDLA:
Przemyślany układ pomieszczeń , duża część dzienna, 3 sypialnie, 2 łazienki, piętro bez skosów
Budynki energooszczędne, wysoki standard budowania
Kompleksowe zagospodarowanie terenu, nowoczesna architektura, spójna koncepcja osiedla
2 prywatne miejsca parkingowe do każdego mieszkania w cenie
Mieszkania bezczynszowe
Indywidualna strefa zieleni – każdy apartament z własnym, ogrodzonym ogrodem
Prywatne, bezpieczne osiedle zamykane szlabanem
Bardzo atrakcyjna lokalizacja z szybkim i bezproblemowym dojazdem do centrum miasta
Niskie koszty zakupu bez pcc i prowizji
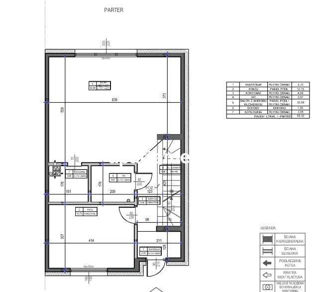
UKŁAD LOKALU Z BUDYNKU 2K1 – 2L1 (118,88m2)
PARTER 59,32 mkw
– pokój dzienny z kuchnią – 30,58 mkw
– pokój – 12,75 mkw
– łazienka – 3,67 mkw
– kotłownia- 3,08 mkw
– korytarz – 4,58 mkw
– wiatrołap – 2,70 mkw
– klatka schodowa – 1,96 mkw
PIĘTRO 59,56 mkw
– pokój – 10,47 mkw
– pokój – 13,45 mkw
– pokój – 11,51 mkw
– garderoba – 6,44 mkw
– łazienka – 7,82 mkw
– korytarz – 7,91 mkw
– klatka schodowa 1,95 mkw
STANDARD WYKOŃCZENIA:
Lokale są oddawane w stanie deweloperskim, z pełnym zagospodarowaniem terenu osiedla wraz z zielenią
Budynki wybudowane w technologii prefabrykatów betonowo – keramzytowych – to nowoczesna technologia zapewniająca wysoką energooszczędność i trwałość budynków
Fundamenty – ciepły fundament – płyta fundamentowa izolowana styropianem XPS o grubości 20cm + 5cm styropian posadzkowy + 7cm wylewka jastrychowa (tylko budynek AB), reszta budynków fundament na ławie, chudy beton 10cm, styropian 10cm + 7cm wylewka z jastrychu
Ściany konstrukcyjne zewnętrzne z keramzyto-betonu grubość 15cm
Ściany konstrukcyjne wewnętrzne z keramzyto-betonu grubość 15cm x 2 między domami i 20cm beton między lokalami
Ściany działowe z paneli Ytong o grubość 10cm, zbrojone
Ściany zewnętrzne ocieplone styropianem klasycznym o grubości 20cm
Izolacja termiczna dachu – styropian 24cm, membrana pvc firmy Fatra
Okna PCV trzyszybowe, kolor na zewnątrz antracyt RAL 7016, wewnątrz białe
Okna tarasowe – Slide Smart, o szerokości 3m, część przesuwna 1,5m
Rolety zewnętrzne elektryczne na wszystkich oknach
Ogrzewanie podłogowe na parterze i na piętrze
Centralne ogrzewanie – piec gazowy dwufunkcyjny firmy DeDietrich
Elewacja – tynk mineralny cienkowarstwowy firmy Caparol, parapety stalowe antracytowe w kolorze okien
Drzwi zewnętrzne antywłamaniowe firmy MARTOM model 64 Nordic, przeszklone, zamek podwójny firmy Wilka
Osiedle zagospodarowane – wykonany parking, ciągi piesze, miejsca postojowe, zieleń ozdobna
Części wspólne wyposażone w ławki, stoliki, stojaki rowerowe
Oświetlenie parkingu oraz ciągów pieszych
Prywatne osiedle – zamykane szlabanem
TERMINY:
Inwestycja zakończona, możliwość przystąpienia od razu do zawarcia notarialnej umowy sprzedaży !
POŁOŻENIE I OSIEDLE:
Osiedle położone w bliskiej odległości od centrum Zielonej Góry, jednocześnie w otoczeniu terenów zielonych. Niedaleko znajdują się przystanek autobusowy, apteka, przedszkola, szkoły, sklepy, markety.
WYKAZ APARTAMENTÓW NA OSIEDLU:
2K/1 – 118,88m2, —- powierzchnia działki 116mkw – sprzedane
2L/1 – 118,88m2, cena 849.000,00 zł —- powierzchnia działki 106mkw – wolny
2L/2 – 118,88m2, —- powierzchnia działki 161mkw – sprzedane
2M/1 – 88,03m2, cena —- powierzchnia działki 93mkw – rezerwacja
2M/2 – 88,03m2, —- powierzchnia działki 87mkw – rezerwacja
2N/1 – 88,03m2, —- powierzchnia działki 86mkw – rezerwacja
2N/2 – 88,03m2, —- powierzchnia działki 142mkw – rezerwacja
2P/1 – 91,89m2, —- powierzchnia działki 95mkw – rezerwacja
2P/2 – 91,89m2 , cena 714.000,00 zł —- powierzchnia działki 88mkw – lokal z gotowym ogrodem – wolny
2R/1 – 91,89m2, —- powierzchnia działki 91mkw – rezerwacja
2R/2 – 91,89m2, —- powierzchnia działki 143mkw – rezerwacja
2S/1 – 91,89m2, cena 699.000,00 zł —- powierzchnia działki 85mkw – wolny
2S/2 – 91,89m2, cena 699.000,00 zł —- powierzchnia działki 82mkw – wolny
2T/1 – 91,89m2, —- powierzchnia działki 80mkw – sprzedane
2T/2 – 91,89m2, —- powierzchnia działki 133mkw – sprzedane